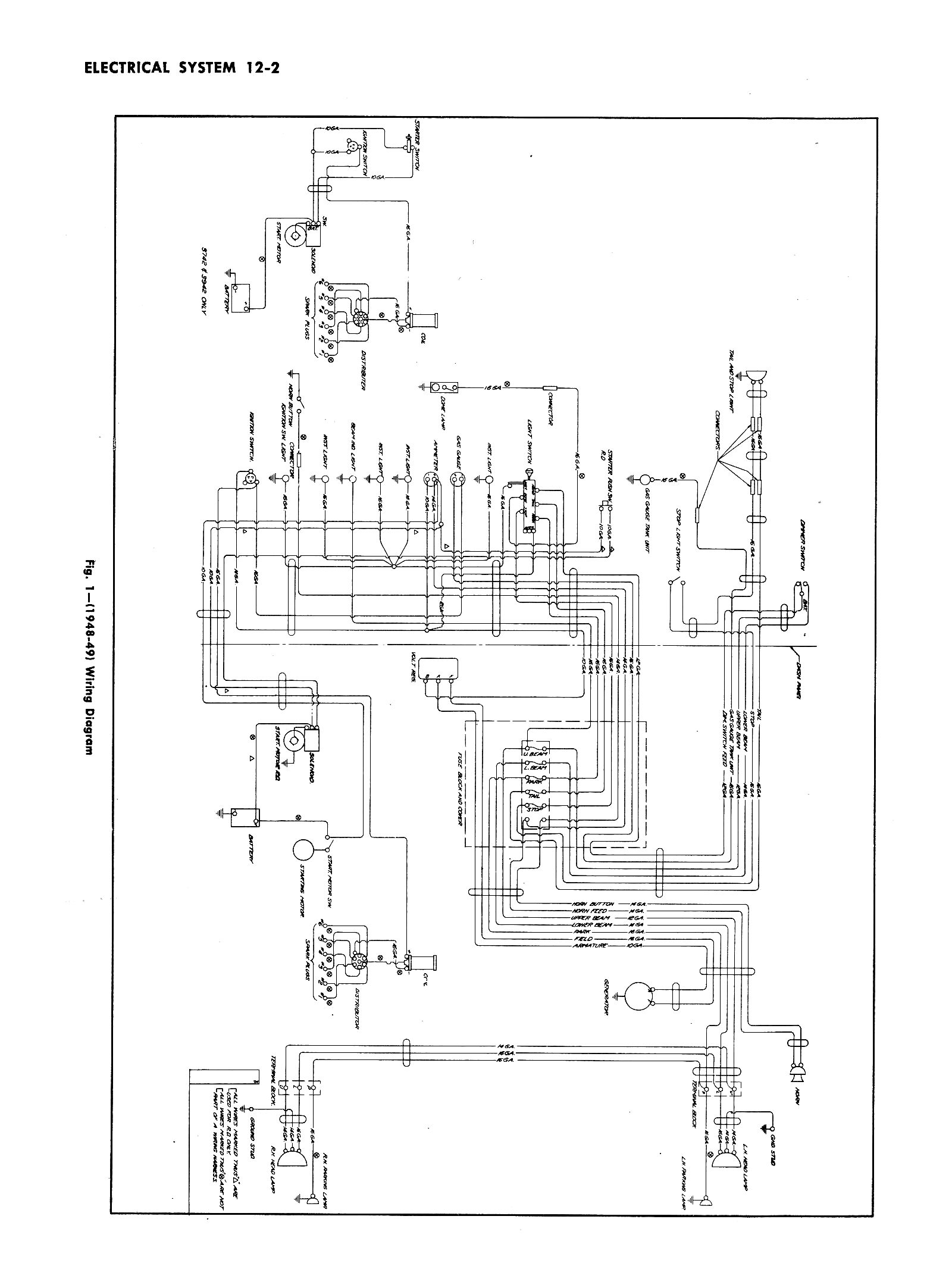
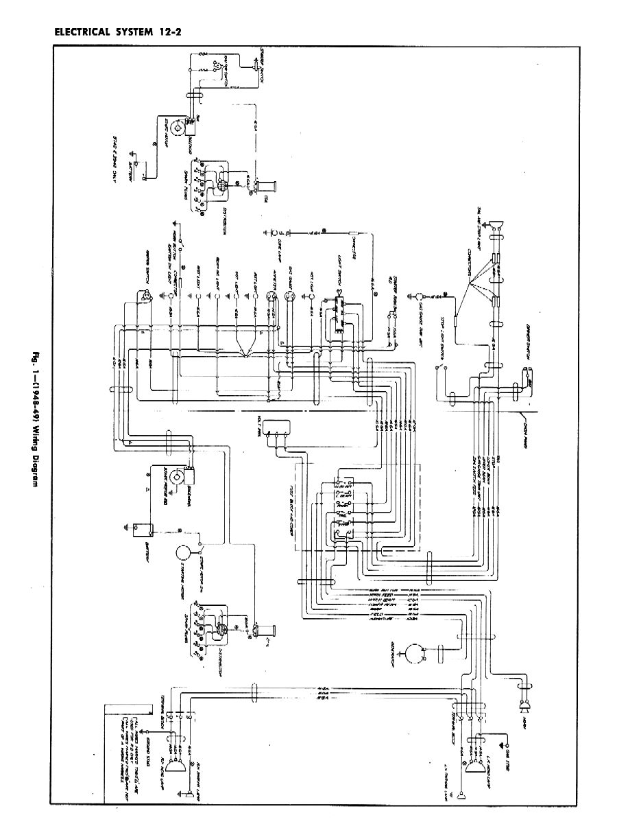
1948 - 1951 Chevrolet Truck Shop Manual

Click Here to ENLARGE SCHEMATIC

 

< PREVIOUS PAGE          INDEX          NEXT PAGE >

 

More Pre - Post War Online Chevy Info

 

WebCounter says that you are visitor number:

Please Report any Broken Links or Pages that do not load properly.  Webmaster

This Information is for Research and the Promotion of the Preservation of Older Chevys

All Names, Trademarks and Logos Belong to their Respective Owners.

 

Web Space Provided by TOCMP

Nedstat Basic - Free web site statistics